Unsere Dienstleistungen – kontaktieren Sie uns, wenn Sie Fragen haben!
Planung, Visualisierung und Konstruktion
Wir machen Architektur und Planung für Ihr TwistBlock-Projekt.
Sie haben bereits eine konkrete Projektidee und möchten diese mit uns besprechen?
Füllen Sie gerne unser enquiry form aus und senden Sie es per E-Mail an info@startsomewhere.eu
1. Grundlegende Bestimmung
In einem ersten Schritt besprechen wir mit Ihnen Ihre Vorstellungen und Anforderungen an das Projekt und legen den Zeitrahmen für die einzelnen Bauphasen fest. In dieser Phase werden grundsätzliche Fragen geklärt, möglichst auf der Grundlage einer gemeinsamen Ortsbesichtigung: Wo und wann soll gebaut werden? Wofür soll das Gebäude genutzt werden? Ist der Standort für das Bauvorhaben geeignet? Welche Finanzierungsmöglichkeiten gibt es? Schließlich dokumentieren wir die Ergebnisse.
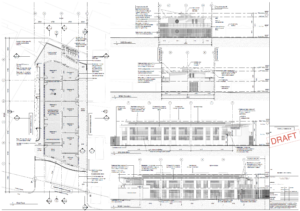
2. Vorläufige Planung
Wir erstellen einen ersten konkreten Entwurf mit unserer Advanced Parametric TwistBlock Planungssoftware sowie einen Kostenvoranschlag und gleichen diesen mit den Finanzierungsvorgaben ab. Wir fassen die wesentlichen Prozesse des Planungs- und Bauprozesses in einem Zeitplan zusammen. Auf Grundlage dieser Informationen erstellen wir einen auf das Projekt zugeschnittenen Projektvertrag (FIDIC-Vertrag).
Die erforderlichen Leistungen werden mit den Fachplanern, wie z. B. der Tragwerksplanung, abgestimmt. Wir erstellen eine maßstabsgetreue Visualisierung des Objekts. In dieser Phase kümmern wir uns auch um die Vorverhandlungen zur Genehmigungsfähigkeit, klären die Eigentumsverhältnisse, die Baubeschreibung und die Zoneneinteilung des Grundstücks.
3. Genehmigungsplanung
Die Genehmigungsplanung knüpft nahtlos an die Ergebnisse der vorangegangenen Phasen an. Die bisherigen Entwürfe werden für die Beantragung der Genehmigung des Bauvorhabens verwendet. Der Architekt verpackt die Ergebnisse des Vorentwurfs in genehmigungsfähige Pläne, die den Anforderungen der Baubehörden entsprechen. Mit den vom Amt geforderten Formularen, Berechnungen und Bauplänen wird der Antrag für das Bauvorhaben eingereicht.
4. Planung der Durchführung
Weitere Ausarbeitung des Entwurfs in Form eines detaillierten TwistBlock-Layouts. Wir berechnen die erforderlichen Mengen an Baumaterialien für die Erstellung der Ausschreibungsunterlagen.
Wir beauftragen eine Partnerorganisation mit dem Management der Hilfskräfte vor Ort.
5. Zuteilung
Koordinierung der Auftragsvergabe, Einholung und Prüfung von Angeboten.
Zu diesem Zeitpunkt führen wir unseren “Partnership Mou (Memorandum of Understanding) Prozess” durch. Dabei geht es darum, dass sich alle beteiligten Organisationen/Gruppen/Teams umfassend beraten und gemeinsam abstimmen. Der Prozess beschreibt alle Partner und Beteiligten und definiert Rollen und Verantwortlichkeiten. Er beschreibt außerdem klar die Ressourcen und Dienstleistungen aller beteiligten Parteien sowie Richtlinien für Management und Wartung.
Der Prozess wird abgeschlossen, indem alle Beteiligten, einschließlich der Bereichsleiter, ein Dokument unterzeichnen, das sie rechtlich bindet.
7. Bauüberwachung und Dokumentation
Überwachung und Koordinierung der Ausführung der Arbeiten und Abstimmung mit der Baugenehmigung. Dokumentation des Bauprozesses, Kostenkontrolle, Feststellung von Mängeln, Überwachung der Beseitigung der festgestellten Mängel.
8. Objektunterstützung
Inspektion des Objekts nach Abschluss der Bauarbeiten zur Feststellung von Mängeln. Koordinierung der Beseitigung von Mängeln.
Wir visualisieren Ihr TwistBlock-Projekt





Wir erstellen professionelle architektonische Visualisierungen zur Unterstützung Ihres Fundraisings auf der Grundlage der Grundlagenerhebung Ihres Projekts.